Yueqing Hekao Electric Co., Ltd.
+ Home      + Contact us
 
Home
About us
Products
Services
Contact us
 
  • 1
  • 2
 
FZW□-72.5 Series Outdoor HV Disconnect Vacuum Load Break Switch
 
FZW□-72.5 Series Outdoor HV Disconnect Vacuum Load Break Switch
Summary


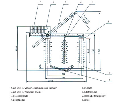
FZW □ -72.5/1250-25 series outdoor HV disconnect vacuum load break switch is a newest product which is designed and manufactured according to the domestic existing mature production experience and overseas advanced technology. The switch is composed of disconnect blade, vacuum arc-extinguishing chamber and operation mechanism. The product has the advantages of strong arc-extinguishing capacity, reliable performance, long lifetime, small size, non-explosive danger and nonpollution. With the matching vacuum load switch, it can be widely used in the distribution systems of electric power, metallurgy, mine and chemical industry to control equipments, and is especially suitable for the frequent operation sites. The product accords with the standard of IEC-62271-103.

Ambient condition

1. Altitude: ≤ 2000m
2. Ambient temperature: -30℃ ~+40℃ diurnal temperature range ≤ 32K
3. wind speed: ≤ 35m/s
4. Pollution degree: ≤Ⅳ
5. Earthquake intensity: ≤ 8 grade
6. Ice thickness: ≤ 10mm

Model

Technical specification

Outline diagram

 
 
  PRODUCT LIST
 
1  Wall perforated waterproof cover for air conditioner
2  Water drainage pump for air conditioner
3  Indicator Light
4  Push button
5  Modular isolation switch series
6  Solid State Relay
7  Industrial plug and socket
8  Vacuum Circuit Breaker Series
9  Outdoor Load Break Switch Series
10  Intelligent Automation Equipment For Power Grid
11  Outdoor AC High Voltage Disconnect Switdh Series
12  Indoor Load Break Switch Series
13  Indoor AC High Voltage Disconnect Switch Series
14  Insulator Series
15  Drop-out Type Fuse Series
16  Arresters
17  Hot stick/insulated rod/operating rod
18  Ground set/earth rod equipment
19  Ground wire,grounding clamp
20  Copper rod /brass rod
21  Safety helmet
22  Discharge rod lightening rod
 
Copyright © Yueqing Hekao Electric Co., Ltd. All Rights Reserved.
Tel: 0086-577-62890982  Fax: 0086-577-62890992  E-mail:sales@hekaoelectric.com; hekao@hekaoelectric.com Add: Room 203,Buildi